The Cube – Diagonal Mar’s neuer Pop-Up Space
In der neuen Einkaufszone im oberen Stockwerk des prestigeträchtigen Einkaufszentrums in Barcelona gelegen, bietet der neue und einzigartige Space den verschiedenen Marken die Möglichkeit für einen Pop-Up Store oder Event.
Der Cube ist sowohl für jungen Marken als auch für große Unternehmen ein Pop-Up Playground, in dem Ideen und Projekte an einem der beliebtesten und frequentiertesten Orten der Stadt getestet werden können.
Das Einkaufszentrum Diagonal Mar möchte auf Initiativen und Projekte setzen, die konzeptionell immer weiter entwickelt werden können und zum Image der Mall passen: Mode, Technologie, Food, Kultur, Sport, Gesundheit oder auch Beauty Produkte.
ECOLAF ist die erste Marke, die sich für den Cube entschieden hat, um ihre Bekleidungs- und Accessoires-Linie aus recycelten Produkten zu präsentieren.


„Projekte wie dieses helfen uns dabei, die Bedrohungen, denen unsere Ozeane ausgesetzt sind und die dringende Maßnahmen erfordern, sichtbar zu machen. Unsere Geschäfte sind nicht nur ein Verkaufspunkt, sondern ein Raum für die Verbreitung und das Bewusstsein für die Probleme, die unsere Meere ersticken.“ – Javier Goyeneche, Präsident und Gründer von ECOALF
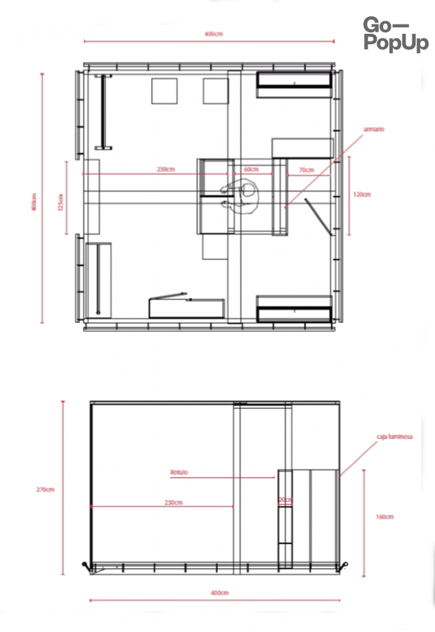
Der Glas Pop-Up Space ist bei Go — PopUp erhältlich, hat 16 m2 und umfasst Möbel und Umkleideräume sowie weitere wichtige Voraussetzungen für ein erfolgreichen Pop-Up Store mit garantiertem Besucherverkehr. Wenn du weitere Informationen zu diesem exklusiven Pop-Up Space hast, kannst du gerne mit uns in Kontakt treten oder direkt hier eine Buchungsanfrage stellen.